Engormix
Inicio
Buscar
Explorar
Publicar
Iniciar sesión
Explorar
Comunidades en español
Agricultura
Balanceados - Piensos
Avicultura
Ganadería
Lechería
Micotoxinas
Porcicultura
Mascotas
Comunidades en inglés
Aquaculture
Mycotoxins
Poultry Industry
Pig Industry
Dairy Cattle
Animal Feed
Comunidades en portugués
Micotoxinas
Avicultura
Suinocultura
Pecuária de corte
Pecuária de leite
Anunciar en Engormix
Inicio
Publicar
Buscar
Engormix.com
/
Balanceados - Piensos
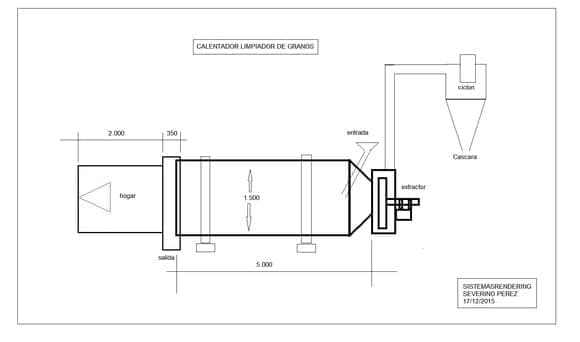
CALENTADOR Y LIMPIEZA DE GRANOS --
Publicado:
19 de diciembre de 2015
Fuente:
Severino Pérez
EQUIPO CALENTADOR LIMPIADOR -PARA SOJA-GIRASOL-MANI---Y OTROS ---EN ESTA INSTALACION DE DEBE INSTALAR ANTES UN QUEBRADOR---LA VISTA ES PARA 8.000 Kg hora
Autores:
Severino Pérez
Sistemas Rendering
Seguir
0
Recomendaciones
0
Comentarios
·
95
Visualizaciones
Recomendar
Comentar
Compartir
Comentar
¿Quieres comentar sobre otro tema? Crea una nueva publicación para dialogar con expertos de la comunidad.
Crear una publicación
Enlace recomendado
E.S.E. & INTEC
E.S.E. & INTEC
E.S.E. fabrica y suministra Equipos, Sistemas y Plantas completas para el procesamiento de Alimentos, Granos y Soja.
Molinos Azteca y Juper S.A. de C.V.
Molinos Azteca y Juper S.A. de C.V.
Empresa Mexicana especialista en el diseño, fabricación e instalación de plantas elaboradoras de alimento balanceado para aves, cerdos, ganado, acuacultura
Usuarios destacados en Balanceados - Piensos
Inge Knap
dsm-Firmenich
Investigación
Estados Unidos de América
Seguir
Alex Corzo
Aviagen
Director General de Servicios Nutricionales
Estados Unidos de América
Seguir
Edgar Poblano
ADM Animal Nutrition
Estados Unidos de América
Seguir
Mostrar más