Explorar

Anunciar en Engormix

Cómo aumentar la Productividad y la Rentabilidad en una Planta de Procesos en Funcionamiento, utilizando el concepto de Plantas Compactadas

Publicado: 27 de febrero de 2009
Fuente: Ing Teodoro Kresisch, Guibor Ltd. Argentina
Al evaluar la rentabilidad anual de la producción de un proceso determinado, encontramos ciertas veces que la mayor gravitación de los egresos necesarios se encuentran en el consumo de los servicios que debemos brindarle al proceso productivo.

A fin de disminuir dicha gravitación, comenzamos a realizar un análisis sobre los equipos existentes en la Planta, descubriendo detalles utilitarios sobre los mismos que hasta el momento no se destacaban.

Basaremos su solución en los siguientes conceptos:

A.- La productividad es la disminución de la cantidad de trabajo por unidad de producto.
B.- La rentabilidad es el aumento del ingreso por unidad de inversión.
C.- La mecanización no implica un aumento del rendimiento, sino la rapidez en el proceso.
Productividad

Disminuir la Cantidad de Trabajo dentro de un proceso es uno de los objetivos básicos de todo tratamiento de mejora, que No siempre implica la inversión en equipos productivos, ni el aumento de la tecnología aplicada.

La esencia se encuentra en utilizar primariamente lo existente de manera más ordenada, aprovechando cada espacio disponible para evitar la disgregación de los esfuerzos energéticos, ya sea acercando los servicios a los equipos, o bien disponiendo los equipos de manera que mejoren la relación entre la continuidad del proceso y el traslado intermedio de los subproductos.

Cómo aumentar la Productividad y la Rentabilidad en una Planta de Procesos en Funcionamiento, utilizando el concepto de Plantas Compactadas - Image 1
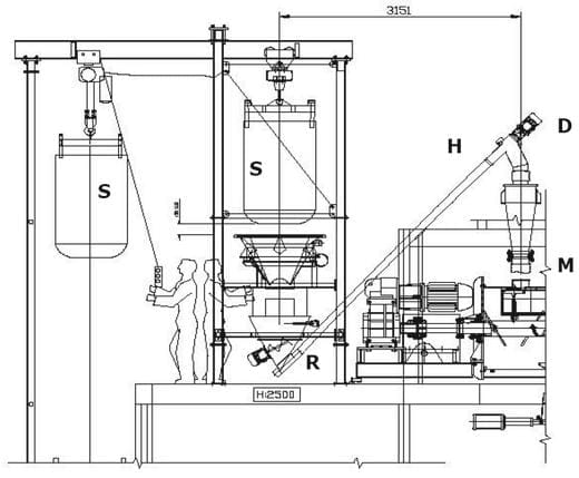
Plano 1: Carga Indirecta

Otro valor a considerar es la elevación del nivel 0 NPT de los insumos. Si bien lo práctico es elevar los mismos por encima de los reactores y/o mezcladores, no siempre resulta factible. En el caso del Plano 1, por falta de espacio volumétrico debido al techo estructural, se solucionó elevando los sacos de insumo al nivel +2500 NPT.

Lo ideal hubiese resultado descargar el contenido en el dosificador (D), colocado exactamente encima de una de las bocas de carga del mezclador (M), evitando el paso intermedio de elevar el producto por medio de un sinfin helicoidal (H).

Pero, las ventajas obtenidas mejoraron la productividad de manera considerable. Los sacos (S) no se abren en el nivel 0 NPT, evitando el transporte vertical del insumo (pulverulento en este caso) por medios manuales y/o electromecánicos, con su consecuente pérdida en tiempo y energía.

Se redujo la longitud del sinfin y sus curvas con respecto a elevarlas desde el nivel 0 NPT, los cuales son costosos tanto en su fabricación, como en la potencia del motor necesario para vencer la resistencia de fricción en el transporte del insumo, asi como en la cantidad de soportes que exige la instalación, y el gasto constante de mantenimiento.

Otra ventaja obtenida resultó ser la disminución de las dimensiones del dosificador (D), el cual es de AISI 304, aprovechando una relación automatizada entre el transportador (H) y el dosificador (D), que limita las cantidades (en peso) de carga, distribuyéndolo entre el receptor del saco (R) y el dosificador (D) el contenido total de la carga. O sea que siempre tendremos un saco lleno disponible por encima del receptor, priorizando la continuidad del servicio como herramienta productiva.


Rentabilidad

Redimensionar un proceso dentro de los parámetros de compactación en una Planta de Procesos, permite minimizar la inversión realizada en su momento, a fin de obtener mejores ingresos por unidad capitalizada.

Tenemos en  el Plano 2 una tipificación en la alimentación de un mezclador. Primariamente se tenía el reactor en el nivel 0 NPT, llevando su subproducto por medio de una bomba con su instalación de conductos, ambos en AISI 304, produciendo un gasto energético constante y su consecuente mantenimiento. También encontrábamos por encima del mezclador un dosificador que atendía al mismo circuito.

Luego de un estudio pormenorizado del circuito, se resolvió separar el dosificador del reactor, elevando éste último por encima del mezclador, eliminado bombas, conductos y codos con sus gastos correspondientes, disponiendo de ellos para cualquier otra función.

Cómo aumentar la Productividad y la Rentabilidad en una Planta de Procesos en Funcionamiento, utilizando el concepto de Plantas Compactadas - Image 2

Plano 2: Compactado de Equipos


Al reactor se le adicionó la función de dosificador colocándole 3 balanzas en su apoyo, así como una válvula guillotina neumática para descarga, que responde a la medición -o señal- gravitatoria para su accionamiento. La conexión con el mezclador se solucionó con un tubo flexible con bridas.

En el caso del dosificador, se soportó con una sola balanza, sin modificar su válvula esférica de accionamiento neumático, adaptándolo a la instalación, para eliminar otro circuito complejo de alimentación de un insumo líquido.

Tanto el reactor como el dosificador son de carga manual, instalándolas en alturas de fácil acceso para su operación.

En éste caso se ha logrado minimizar las instalaciones, liberando servicios adicionales colocándolos en situación de disponibilidad, por ende incrementando la rentabilidad de la planta -disminuyendo inversiones anteriores-, reduciendo sus gastos operativos y de mantenimiento.

Se suma a ésto que se logró un aumento en el rendimiento del proceso, ya que al disminuir los recorridos de los subproductos y sus gastos energéticos de accionamiento, se incrementó la velocidad de carga al mezclador, consecuentemente la capacidad de trabajo del mezclador aumentó en el mismo tiempo operativo.


La Mecanización enfrentada a la Velocidad de Trabajo
En toda Planta de Procesos se considera que la multiplicidad de equipos aumentan la operatividad, cuya consecuencia directa es el rendimiento, y la menor intervención artesanal del personal.

El axioma de que la progresiva mecanización permite enfrentar mayores producciones con menores gastos de continuidad operativa, abriendo el campo de la competitividad y la presencia comercial, no siempre es factible de implementar.

Es conveniente, a la hora de definir equipos y servicios, destacar la multifunción de cada elemento que se adquiere, así como la flexibilidad de accesos (entradas opcionales y salidas alternativas) para su interconexión con cada máquina y/o equipo secundario antes de confirmar su adquisición.

Es importante destacar que dentro de la dinámica de una Planta de Procesos, uno de los principales factores de crecimiento productivo es la modificación de su layout, donde el reordenamiento de los equipos y servicios permite generar disponibilidades, inclusión de mejoras técnicas, así como ampliar los espacios de trabajo y los desplazamientos de los productos y subrpoductos, que en definitiva son valores que incrementan la velocidad de trabajo.

Se debe atender que en el caso de los insumos no resulta lo expresado, donde se deben aplicar conceptos inversos, o sea mínimos espacios, compactación y utilización volumétrica.

Estas modificaciones en la redistribución, permite controlar las mejoras continuas, asomando el parámetro comparativo como medida demostrativa de los aciertos logrados.

Otro de los factores que incrementan la velocidad en las tareas productivas es la tecnificación de la Planta de cuestión, o sea la utilización de los adelantos técnicos específicos que resulten aplicables al proceso de transformación diseñado en el momento de la inversión.

Todo tipo de mejora seleccionada debe presentar algunos de los siguientes parámetros, entre otros:
        
- Maquinaria apropiada a la cultura laboral del personal disponible. La contratación de personal calificado suele resultar contraproducente, principalmente en las relaciones interlaborales, sin descartar la dependencia focalizada en un salario adicional.
        
- Algunos procesos novedosos requieren un constante soporte técnico, sometiendo la producción al avance vertiginoso del desarrollo tecnológico.
        
- Todo equipo debe presentar un fácil mantenimiento, con repuestos standard y accesibles al lugar geográfico de la Planta productiva.

- Se debe atender en los equipos a incluir, que el capital de sostenimiento (mantenimento, repuestos, servicios, personal operativo, consumo de energía, etc.) sea acorde a la producción estimada.

- En el caso de reducir la cantidad de horas hombre del personal, se debe considerar su efecto social y de medio ambiente.

Como corolario podemos apreciar que la internacionalización de los mercados exige un incremento en el rendimiento de los procesos productivos, priorizando la mejora continua en la industrialización de las plantas, la cual puede lograrse con la adquisición de maquinaria nueva, o bien reorientando los beneficios de los equipos existentes, valorizando la inversión realizada extrayendo de ellos el 100% de su diseño constructivo.
Temas relacionados:
Autores:
Ing Teodoro Kresisch
Guibor Ltd
Recomendar
Comentar
Compartir
Ing Teodoro Kresisch
Guibor Ltd
20 de marzo de 2009
Deseo agradecer a Engormix el espacio brindado para exponer inquietudes, haciendo extensivo el mismo a los comentarios recibidos. Cabe destacar que dentro de un foro tenemos la posibilidad de plantear temas propios, buscando siempre aportes a nuestros planteamientos y necesidades, aprovechando de esta manera la oportunidad brindada para recibir sugerencias y apoyo tecnico.
Recomendar
Responder
Ing Fabricio Morillo
Reproavi
24 de junio de 2009
MUY JUSTIFICATIVO EL COMENTARIO ES PRACTICO Y CONSIGO FELICITACIONES
Recomendar
Responder
Luz Maria Anchondo Hernandez
17 de marzo de 2009
Gracias por este articulo tecnico ,inicie en septiembre 2008 y tengo un pequeño molino, criba y mezcladora en promedio producimos 18 tons., mi hijo y yo hacemos alimento para gallos de pelea y con un espacio muy pequeño asi de que esto me va a ser muy util. ING. Luz Ma Anchondo H.
Recomendar
Responder
Antonio Raúl Fontanet
17 de marzo de 2009
Le agradesco por lo oportuno de la nota ya que me estoy dedicando a la producción de balanceados a partir de harinas (granos, pastos, etc.) y me resulta crucial el problema de los manejos de tiempos y volúmenes.-
Recomendar
Responder
Heron Coello
Heron Coello
17 de marzo de 2009
Excelentes recomendaciones y muy ilustrativas!!! Felicitaciones al Ing. Teodoro Kresisch por su brillante aportacion a engormix.com
Recomendar
Responder
Segundo Saez
16 de marzo de 2009
UN APORTE MY SIGNIFICATIVO PARA TODOS LOS QUE TRABAJAMOS EN EMPRESAS PIMES, GRACIAS.
Recomendar
Responder
Juan Carlos Guardia Cabello
Juan Carlos Guardia Cabello
16 de marzo de 2009
Ante todo felicitar a ENGORMIX por la gran labor que realiza en bien de la Comunidad Mundial al mantener vigentes los Foros que tanto nos ilustran y ayudan a solucionar un sin fin de Problemas en nuestro diario que hacer profesional y por supuesto hacer extensiva èsta humilde Felicitaciòn a todos aquellos Profesionales que con su participaciòn le dan vida e importancia a estos Foros . De manera especial , felicitar al Ing.Teodoro Kressich por su generoso aporte con la presentaciòn en èste Foro del Tema de Turno ya que las Plantas Compactas han de permitir a los Pequeños Empresarios iniciarse en la Elaboraciòn de sus Propios Alimentos Balanceados lo cual si bien es cierto , se requiere de una inversiòn inicial significativa , a la larga el retorno de la Inversiòn viene acompañada de los frutos correspondientes una vez que se lacanzan las Metas Prefijadas. Quiero resaltar el hecho importante de haber presentado el Tema con los Croquiz correspondientes lo cual nos permite visualizar muy claramente las recomendaciones del Ing. Teodoro Kressich. Atentamente. Juan Carlos Guardia Cabello
Recomendar
Responder
Profile picture
¿Quieres comentar sobre otro tema? Crea una nueva publicación para dialogar con expertos de la comunidad.
Usuarios destacados en Balanceados - Piensos
Inge Knap
Inge Knap
dsm-Firmenich
Investigación
Estados Unidos de América
Alex Corzo
Alex Corzo
Aviagen
Director General de Servicios Nutricionales
Estados Unidos de América
Edgar Poblano
Edgar Poblano
ADM Animal Nutrition
Estados Unidos de América